【導讀】電子元器件的濕熱試驗分為恒定濕熱試驗和交變濕熱試驗兩類。恒定濕熱試驗是為了確定元器件在高溫、高濕條件下工作或貯存適應能力。而交變濕熱試驗是用加速方式評估元器件及所用材料在炎熱和高濕條件(典型的熱帶環境)下抗退化效應的能力。
下面我們就來聊聊兩種元器件濕熱試驗的原理、試驗設備、可能暴露的缺陷及關鍵點。
一 五種現象
濕熱試驗中主要有5種物理現象,分別是吸附、凝露、擴散、吸收和呼吸作用。
1、氣體分子(指水蒸氣分子)在空間運動可能碰撞固體物質(受試產品)的表面,當一定數量的氣體分子“停留”在受試產品表面上的濃度高于它在氣相中的濃度,從而產生凝結,這種氣體在固體表面上“停留”的現象稱之為吸附。
2、凝露實際上是水分子在受試產品上吸附的一種現象,但它是在試驗溫度變化時產生的。在升溫階段,受試產品表面溫度低于周圍空氣露點溫度時,水蒸氣便會在受試產品表面凝結成液體形成水珠。在交變濕熱試驗的升溫階段,由于受試產品的熱慣性,使它的溫度上升滯后于試驗箱的溫度。
因此,表面便產生了凝露現象。表面凝露量的多少取決于受試產品本身的熱容量大小以及升溫速度和升溫階段的相對濕度。在交變濕熱試驗的降溫階段,封閉外殼的內壁比殼內空氣降溫快、因此也會出現凝露現象。
3、擴散是分子運動的一種物理現象。在擴散過程中,分子總是從濃度大的地方向濃度小的地方遷移。濕熱試驗中水蒸氣向濃度較低的材料內部擴散的。擴散與絕對濕度、溫度及材質有關。
4、吸收是指水蒸氣與空氣混合通過材料的間隙進入材料內部,它可以由擴散、滲透或毛細管凝結三種物理過程綜合形成。擴散和滲透除了與試驗條件中的濕度(決定了水蒸氣壓力)和溫度有關外還與材料的擴散或滲透系數有關,這也就是說與受試產品的材質有關。
5、具有封閉外殼的設備,若內部有較大容積的空腔,當試驗溫度變化時,空腔內的空氣壓力隨之變化,由于這種壓力變化引起空腔內外空氣的交流稱之為呼吸作用。
這種呼吸作用進入空腔內的潮氣量除與空氣中的濕度有關外還與試驗條件的溫度變化速率和溫度變化范圍有關。
二 試驗原理
1 恒定濕熱試驗
恒定濕熱試驗是指溫度濕度試驗條件不隨時間變化的濕熱試驗。產品的受潮作用主要是由水蒸汽吸附、吸收和擴散三種物理現象引起,試驗樣品使用場所環境溫度變化不大,產品表面不會產生凝露現象時應選擇恒定濕熱試驗方法。
高溫和高濕度的同時作用,會加速金屬件的腐蝕和絕緣材料的老化。對于半導體器件,如果水汽滲透進管芯,還會引起電參數的變化。尤其在兩種不同金屬材料的鍵合處或連接處,由于水汽滲入會產生電化學反應,從而使腐蝕速度大大加快。
此外,在濕熱環境中,管殼的電鍍層可能會剝落,外引線可能生銹或銹斷。因此,高溫高濕度的環境條件是考核器件穩定性和可靠性的重要試驗之一。
2 交變濕熱試驗
交變濕熱試驗方法是指溫度濕度條件,在24小時內周期性地在高溫高濕和低溫高濕之間變化的一種濕熱試驗。
當試驗樣處于交變的高濕、高溫條件下時,水汽借助于溫度以擴散、熱運動、呼吸作用和毛細現象等被吸入器件內部。水汽的吸入量一方面和溫度、絕對濕度、時間有關(溫度越高,水分子的活動能越大,水分子越容易進入器件內部。絕對濕度越大,水分子含量就越多,水分子滲入器件內部的可能性也增大)。
另一方面與溫度變化率、溫差有關(溫度變化率則決定了單位時間內“呼吸”的次數;溫差的大小決定了“呼吸”程度的大小)。高溫和高濕度的同時交變作用,會加速金屬配件的腐蝕和絕緣材料的老化。
交變濕熱試驗與恒定濕熱試驗不同,它采用溫度循環來提高試驗效果,其目的在于提供一個凝露和干燥的交替過程,使進入密封外殼內的水汽產生“呼吸”作用,從而使腐蝕過程加速。在高溫下,潮氣的影響將更加明顯。
試驗包括一個低溫子循環,它能使在其他情況下不易發現的退化作用加速顯現。這樣,通過測量電特性(包括擊穿電壓和絕緣電阻)或進行密封試驗就可以揭示該退化現象。如果需要,交變濕熱試驗還可以對某些元件施加一定的電負荷,從而確定載流元件特別是細導線和接點的抗電化學腐蝕的能力。
三 實驗設備
1、濕熱試驗的設備為濕熱試驗箱,恒定濕熱試驗采用恒定濕熱試驗箱,交變濕熱試驗需采用高低溫濕熱試驗箱。
2、相關標準參見G82423.22,GB2423.34,GJBl50.9等。
3、在試驗箱中產生潮濕條件的方法常有:a.水揮發加濕、b.氣泡加濕、c.噴霧加濕、d.蒸氣加濕。


恒定濕熱試驗箱組成示意圖

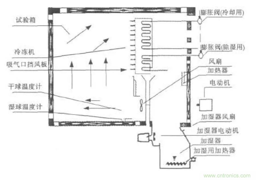
交變濕熱試驗箱組成示意圖

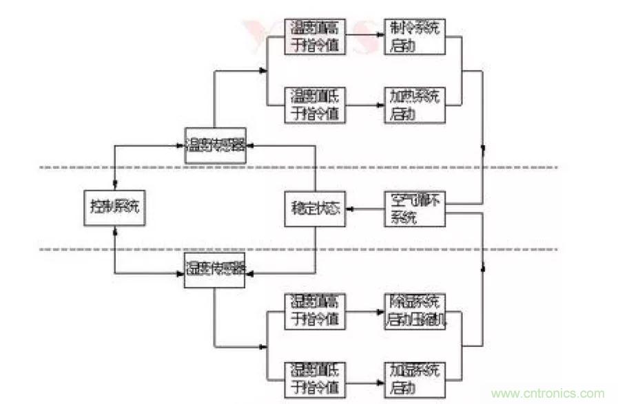
交變濕熱試驗箱控制原理
四 缺陷暴露
濕熱試驗中元器件常見暴露缺陷有外引線腐蝕、外殼腐蝕、離子遷移和封裝材料(絕緣、膨脹和機械性能)。
五 關鍵點
1、濕度測量是保證濕熱試驗準確的基礎,常用的兩種類型,一種是用干濕球溫度計原理,另一種是用濕敏元件。目前在濕熱試驗設備中用得較多的還是采用干濕球溫度計原理的測濕方法。
2、選用溫度計作干濕球測量元件時,要注意選擇形狀、規格和性能一致的溫度計組成對。
3、溫濕度誤差包括了箱溫的波動度(由控制造成的),均勻度(由箱體通風和結構造成的)及測試儀器三方面誤差之和。
六 為什么大部分產品都要做濕熱測試?
在可靠性實驗中,濕度一般施加在高溫段,在對濕度誘發的故障機理分析的同時要考慮高溫及后期的低溫的綜合作用。在機械特性方面,濕氣侵入材料的表面進材料分解、長霉及形變等。
如果和高溫同時作用,絕緣材料的吸濕加快,甚至會產生吸附、擴散及吸收現象和呼吸作用,使材料表面腫脹、變形、起泡、變粗,還會使活動部件摩擦增加甚至卡死;在電氣方面,由于潮濕,在溫度變化時容易產生凝霜現象,從而造成電氣短路。
潮濕引起的有機材料的表面劣化也會導致電性能的劣化,同時在高溫下潮濕還會導致接觸部件的觸點污染,使觸點接觸不良。
濕度誘發的主要故障模式有:1、電氣短路;2、活動元器件卡死;3、電路板腐蝕;4、表層損壞;5、絕緣材料性能降低等。

另外,對于其它類型的環境應力和所能激發的故障類型也有一定的對應關系。在產品可靠性試驗中施加綜合應力比施加單一應力更能有效地加法產品的缺陷,因為某一環境因素對產品的影響會隨著另一種環境因素誘發得到加強并導致失效。
這就要求,在對具體產品進行RET時,必須深入分析各類型應力對產品各類型缺陷作用的機理,確定RET中各種應力的優秀綜合方式。
執行與滿足標準
GB/T 11158-2008 高溫試驗箱技術條件;
GB/T 10589-2008 低溫試驗箱技術條件;
GB/T 10592-2008 高低溫試驗箱技術條件;
GB/T 10586-2006 濕熱試驗箱技術條件;
GB/T 5170.1-1995 電工電子產品環境試驗設備基本參數檢定方法 總則
GB/T 5170.2-1996 電工電子產品環境試驗設備基本參數檢定方法 溫度試驗設備
GB/T 5170.5-1996 電工電子產品環境試驗設備基本參數檢定方法 濕熱試驗設備
GB/T 5170.18-1996 電工電子產品環境試驗設備基本參數檢定方法 溫度/濕度組合循環試驗設備
GB/T 2421-1999 電工電子產品環境試驗 第1部分:總則
GB/T 2422-1995 電工電子產品環境試驗 術語
GB/T 2423.1-2001 電工電子產品環境試驗 第2部分:試驗方法 試驗A:低溫
(idt IEC 60068-2-1:1990);
GB/T 2423.2-2001 電工電子產品環境試驗 第2部分:試驗方法 試驗B:高溫
(idt IEC 60068-2-2:1974);
GB/T 2423.3-2006 電工電子產品環境試驗 第2部分:試驗方法 試驗Cab:恒定濕熱試驗(IEC 60068-2-78:2001,IDT);
GB/T 2423.34-2005電工電子產品環境試驗 第2部分:試驗方法 試驗Z/AD:溫度/濕度組合循環試驗。(idt IEC 60068-2-38:1974);
GB/T 2423.4-1993 電工電子產品基本環境試驗規程 試驗Db:交變濕熱試驗方法(eqv IEC 60068-2-30:1980);
GB/T 2423.9-1989 電工電子產品基本環境試驗規程 試驗Cb:設備用恒定濕熱試驗方法
GB/T 2424.1-2005電工電子產品環境試驗 高溫低溫試驗導則 (idt IEC 60068-3-1:1974);
GB/T 2424.2-2005電工電子產品環境試驗 濕熱試驗導則 (idt IEC 60068-3-4:2001);
GB/T 2424.5-2006電工電子產品環境試驗 溫度試驗箱性能確認 (idt IEC 60068-3-5:2001);
GB/T 2424.6-2006電工電子產品環境試驗 溫度/濕度試驗箱性能確認 (idt IEC 60068-3-6:2001);
GB/T 2424.7-2006電工電子產品環境試驗 試驗A和B(帶負載)用溫度試驗箱的測量
(idt IEC 60068-3-7:2001);
GJB150-1-86 軍用設備環境試驗方法 總則
GJB150-3-86 軍用設備環境試驗方法 高溫試驗
GJB150-4-86 軍用設備環境試驗方法 低溫試驗
GJB150-9-86 軍用設備環境試驗方法 濕熱試驗
推薦閱讀:





